PROJECT DETAILS

Leasing Info
 

Taking advantage of the existing classrooms and activity rooms, the school’s rehabilitation will transform the historic spaces to support a mix of creative, commercial and community uses. The re-imagined East Street School is designed to foster a culture of artistic excellence where artists can continue to grow personally and professionally.

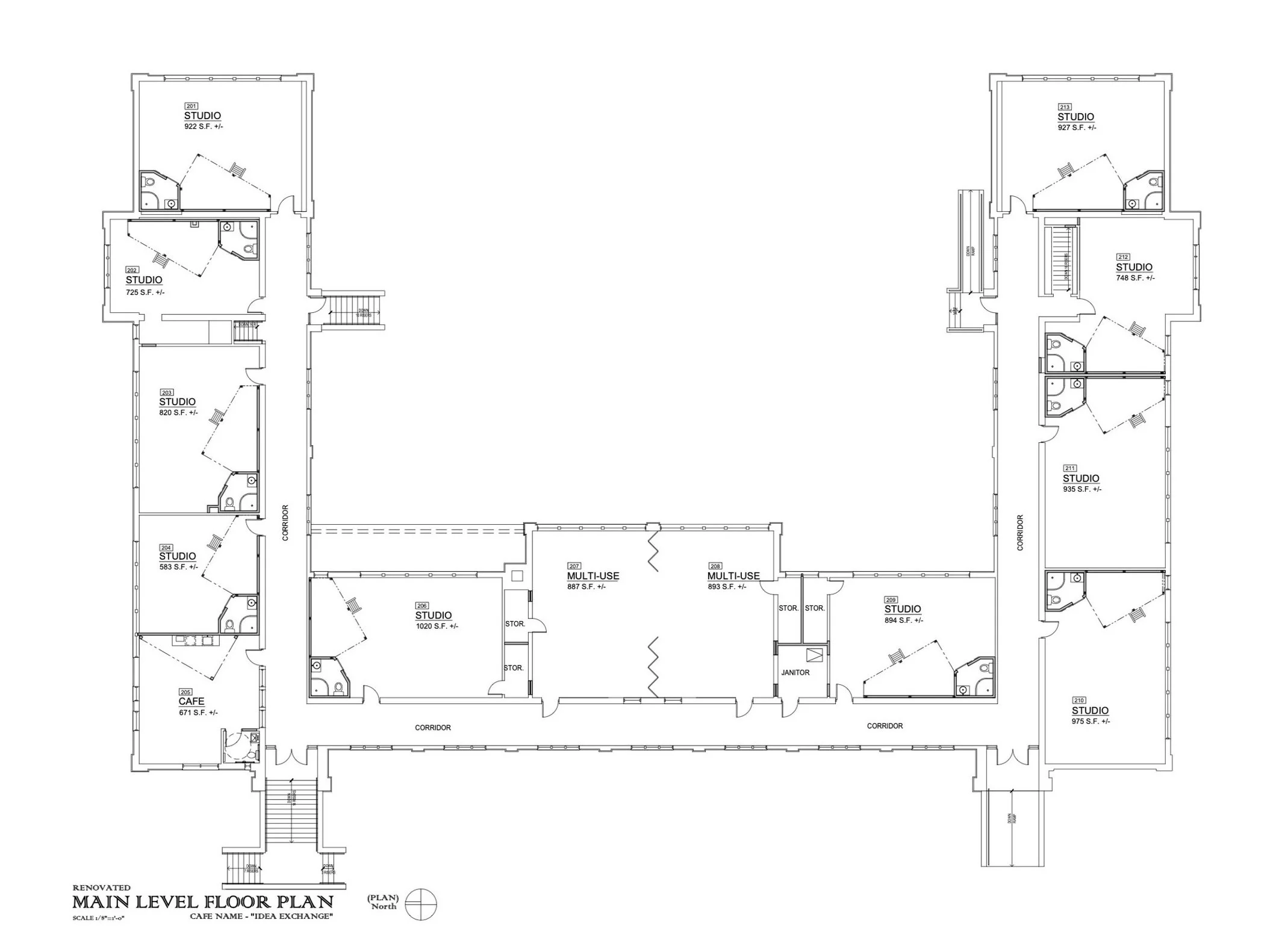
+  15 live/work units ranging from 550 to 1,020 SF

+  Professional culinary space

+  Art studio rentals

+  Social common spaces to cultivate community and collaboration among residents

+  On-site property management team for all rental needs

+  Shared gardens

+ Parking space included with each unit

+ Nearby recreation includes hiking, biking, fishing and more

+ On the route of the new bike trail

+ Walking distance to historic downtown Trinidad

+ Originally designed by nationally acclaimed Rapp & Rapp architectural firm, thoughtfully renovated by architect Paul Glenn

  • PROFESSIONAL CULINARY ARTS SPACE

  • ART STUDIO RENTAL SPACES

  • HOURLY-RENTAL, EVENT/CLASSROOM SPACE

  • SHARED GARDENS, CAFE AND GATHERING SPACES

  • WIDE, LIGHT-FILLED CORRIDORS FOR ART DISPLAY

 

ART STUDIO RENTALS

4 Studios 250 SF

Click to view full floor plan

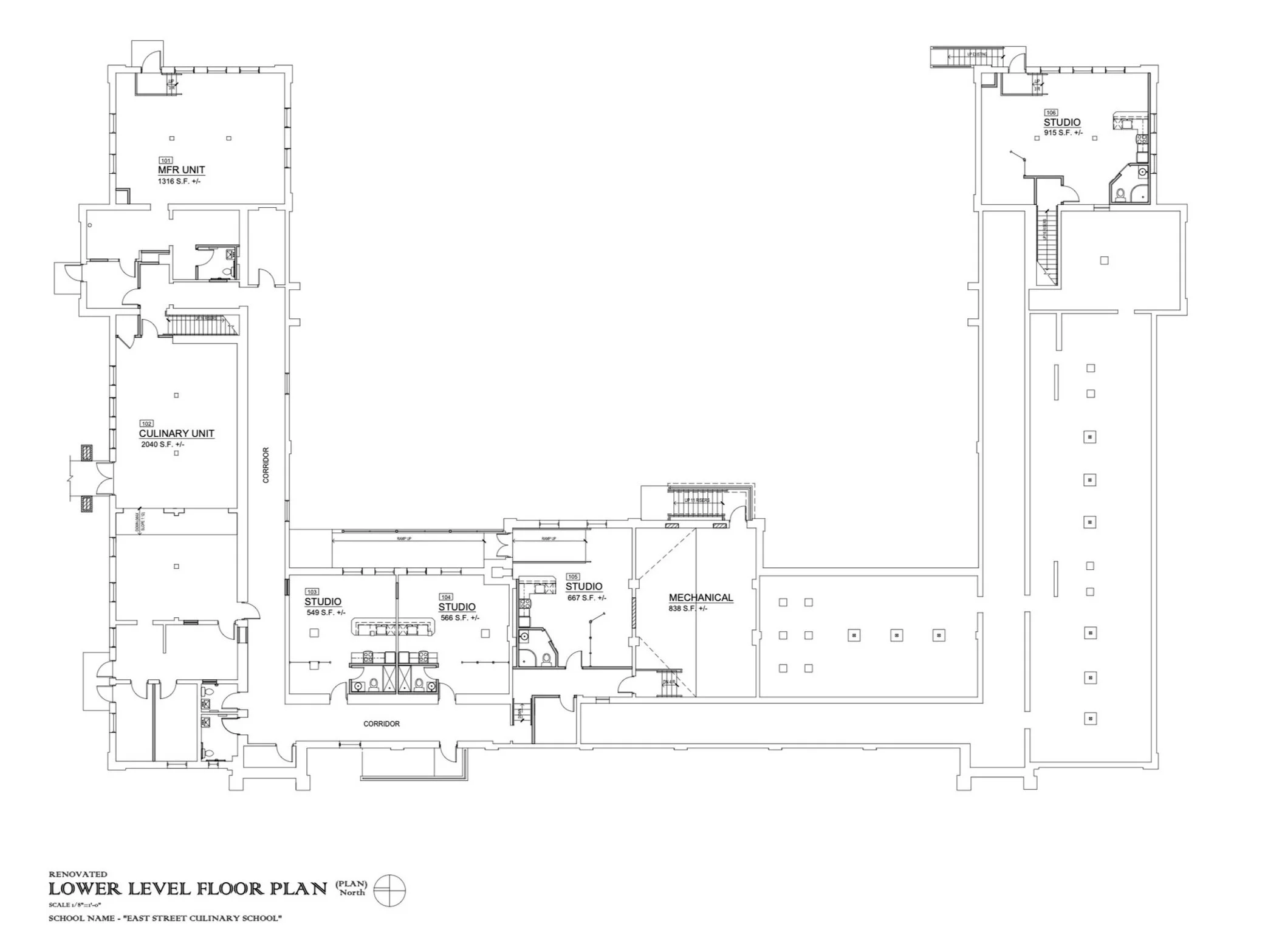
CULINARY SPACE

2,040 SF

Click to view full floor plan

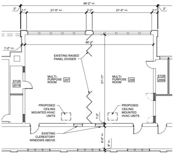
MULTIPURPOSE HOURLY RENTAL SPACE(S)

Unit 207 (887 SF) Unit 208 (892 SF) - Two units or one combined space.

Click to view full floor plan